【 新 築 】ヴィトーリア
新築・オートロック・自社管理物件
賃料
59,000円~
敷金
1ヶ月
礼金
1ヶ月
正門周辺
人文学部教育学部法学部経済学部理学部農学部創生学部医・歯学部(1年次)
おすすめPOINT
- セキュリティ
- 防犯カメラ
- 駐輪場
- バストイレ別
- インターネット無料
- IHコンロ付き
- 新築・築浅
- 洗面化粧台
- 温水洗浄便座
- ベッド・ベッドスペース
- ベランダ・サンルーム
- テレビモニターフォン
<おすすめポイント>
・新潟大学正門まで徒歩約2分
・オートロック&防犯カメラ完備で安心
・宅配BOXも設置され便利
・新潟の天候でも過ごしやすいサンルームあり
・人気の対面キッチンとベッドスペース
・Wi-Fiも使用料無料でご利用可能
・IHコンロ設置済み
・駐輪場あり
025-264-2111
MORE INFO物件詳細情報
管理物件no.
| 賃料 | 59,000円~ | 管理費/共益費 | ー |
|---|---|---|---|
| 敷金 | 1ヶ月 | 礼金 | 1ヶ月 |
| 仲介料 | 1ヶ月+消費税10% | 家財保険 | 7,600円/年 |
| 保証料 | ー | 安心入居サポート | 11,000円/年 |
| 入居時鍵交換料 | ー | 退去時クリーニング料 | ー |
| 駐車場 |
有 3,000円/月(駐車場契約時) ※要空き確認 |
町内会費 | 100円/月 |
| インターネット | Wi-Fi無料 | インターネット初期費用 | 11,000円 |
| 所在地 | 新潟市西区大学南1丁目 | ||
|---|---|---|---|
| 交通 | 新潟大学前駅まで徒歩約16分 | 物件種別 | 学生アパート |
| 築年数 | 2026年3月完成予定 | 構造 | 木造2階建て |
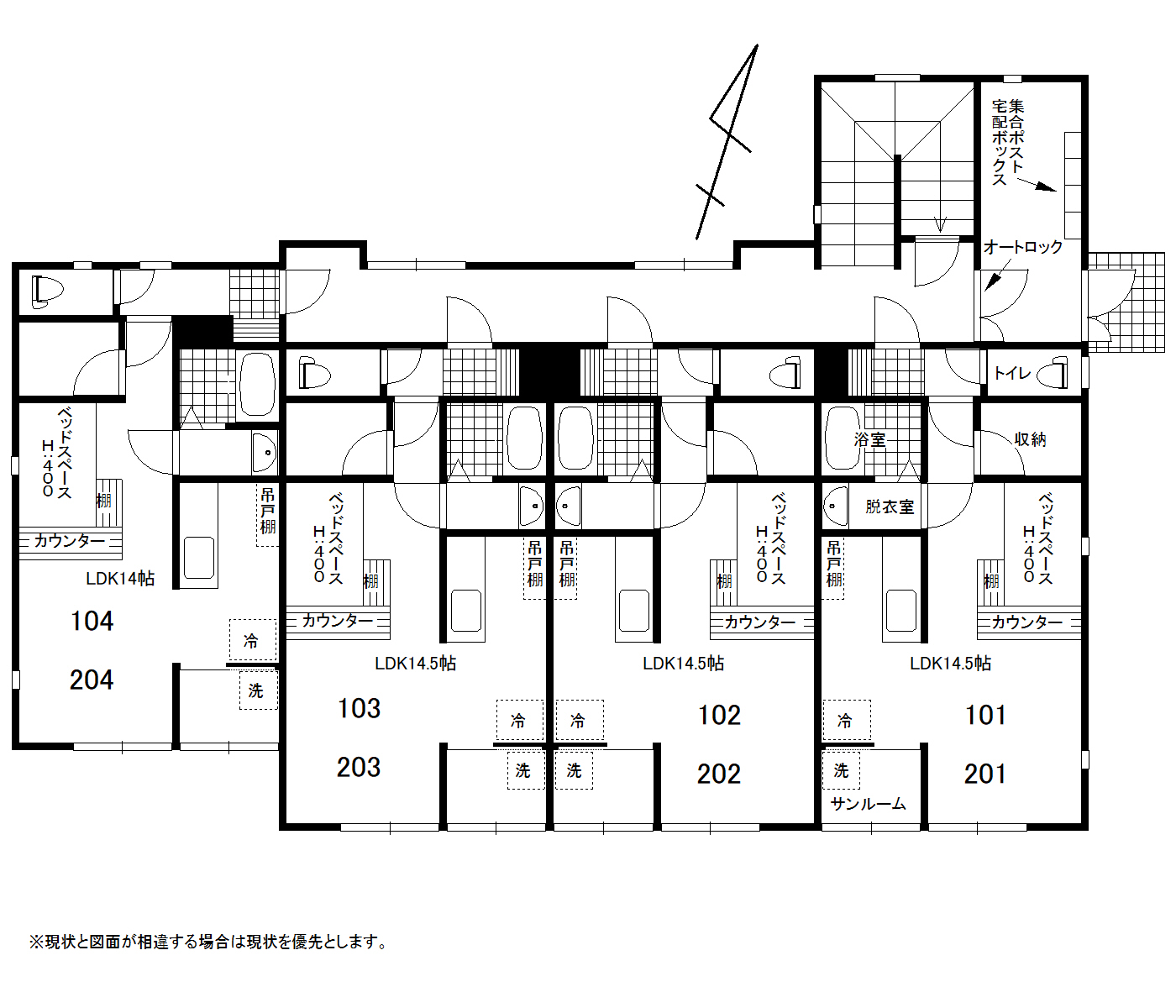
| 間取り |
1R (対面キッチンタイプ) |
間取り詳細 | LDK(14帖又は14.5帖)+ベットスペース |
| 専有面積 | 36.84㎡ | 取引態様 | 仲介 |
| 電話 | ー | 電気容量 | ― |
| 引渡し | 2026年3月末よりご入居可能(予定) | 禁止暖房器具 |
電気暖房器具以外使用禁止 (灯油ファンヒーター使用不可) |
| 条件 |
駐輪場 専用ゴミ収集所 エアコン1台 IHコンロ付 ガス給湯設備 フローリング サンルーム バス・トイレ別 TVモニターホン 地デジ対応 BS有 室内洗濯置場 温水洗浄便座 都市ガス 防犯カメラ オートロック |
備考 |
■全室禁煙 ■初期費用総額:335,800円(駐車料別) ※初期費用は概算金額です。 詳細等につきましてはお問合せ下さい。 |
AREA INFO周辺環境
新潟大学正門まで約155m
セブンイレブン新潟大学正門前まで約390m
清水フードセンター大学前店まで約1,135m
新潟大学前郵便局まで約605m
JR新潟大学前駅まで約1,280m
この物件を詳しく知りたい、
空室状況や内見等のお問い合わせはこちら
025-264-2111
受付:平日9~17時(12~3月無休)
